AGENCE DE VILLEPREUX – PARC SAINT NICOLAS – VILLEPREUX
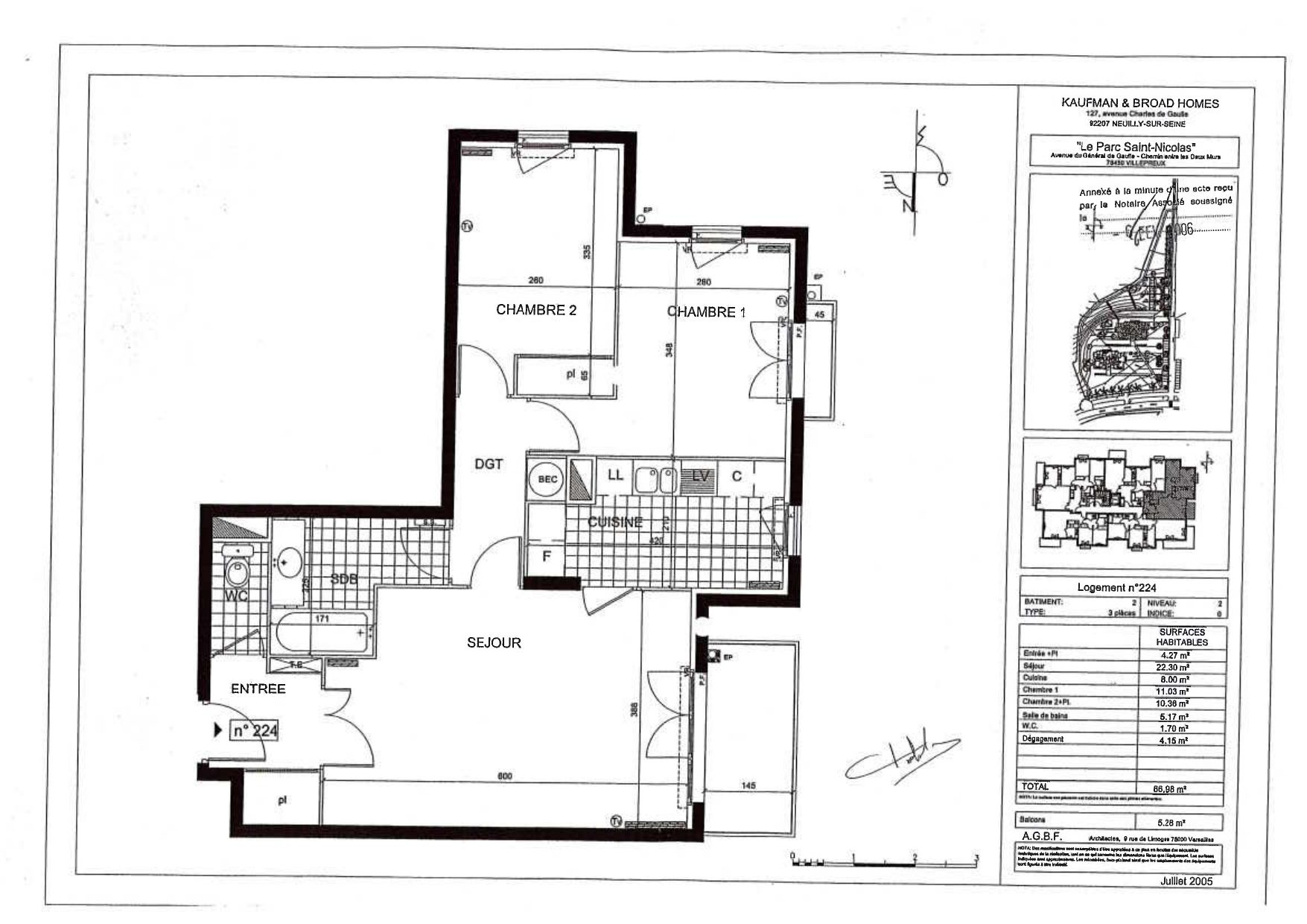
Dans l’une des résidences les plus prisées de Villepreux, laissez-vous séduire par ce superbe appartement 3 pièces de 67 m², niché au 2ᵉ étage avec ascenseur, au cœur d’un environnement verdoyant et parfaitement au calme.
Dès l’entrée, le ton est donné : rangements intégrés, volumes agréables et une atmosphère chaleureuse. Le séjour baigné de lumière s’ouvre sur un balcon idéal pour profiter des beaux jours, tandis que la cuisine équipée vous attend pour des moments conviviaux.
L’espace nuit, bien séparé, offre deux chambres confortables, une salle de bains fonctionnelle et un WC indépendant.Pour votre confort quotidien, vous bénéficiez également de deux places de parking en sous-sol, un véritable atout dans le secteur.
La résidence, entièrement sécurisée, se compose de seulement deux bâtiments, garantissant une ambiance intime et sereine.Écoles, commerces et transports sont accessibles à pied en quelques minutes, vous offrant un cadre de vie pratique et recherché.
Un bien rare sur le secteur, alliant tranquillité, confort et emplacement idéal.
Honoraires à la charge du vendeur. Dans une copropriété de 86 lots. Quote-part moyenne du budget prévisionnel 1 966 €/an. Aucune procédure n’est en cours. Classe énergie C, Classe climat A Montant moyen estimé des dépenses annuelles d’énergie pour un usage standard, établi à partir des prix de l’énergie de l’année 16777215 : entre 860.00 et 1210.00 €. Les informations sur les risques auxquels ce bien est exposé sont disponibles sur le site Géorisques : georisques.gouv.fr.





















